15905 Savory Cir., Parker, CO

15905 Savory Cir., Parker, CO 80134

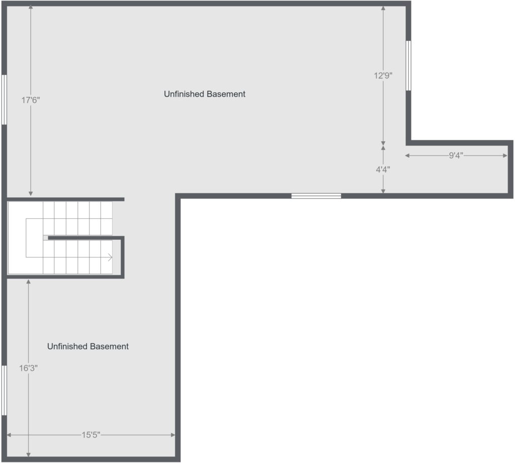
LOCATION, LOCATION, LOCATION!!! Fantastic newer home in desirable Regency featuring granite counter-tops, cherry wood cabinets, gourmet kitchen with SS appliances, wrought iron railings, UPSTAIRS LAUNDRY with cabinets and sink, 4 bedrooms, 4 bathrooms, 3 car oversized garage, Trex deck and hot tub!! This spacious floor plan is open, bright and super functional! The 2nd bedroom upstairs has its own very nice 3/4 bathroom. The unfinished basement is VERY well laid out and would easily allow for another bedroom, bathroom and a nice sized rec room. The location doesn’t get much better, super quiet street with low traffic, backs to a greenbelt/trail, 15 minutes to DTC and super close to shopping, grocery and dining. There are also parks and open space throughout the neighborhood to enjoy.

Floor plan measurements are for illustrative purposes only and not guaranteed to be 100% accurate. 

 

  • Price $470,000
  • Year Built 2012
  • Bedrooms 4
  • Bathrooms 4
  • Size 4,082 Sq Ft
  • Parking 3 Car Garage

CONTACT

Please use the form below to reach out.

Content Provided By Pixelray Photography / www.pixelrayphotography.com
Pixelray Photography

15905 Savory Cir., Parker, CO

SHARE THIS PAGE